三坊七巷作为古典院落建筑的经典范式,以其独特的坊巷体系,以及与自然和谐共处的布局,为一个时代的人居美学定义了尺度,为别墅建筑提供了模板。依托三坊七巷,在泰禾鼓山院子,墅级尺度定义大平层户型设计,带来卓越的独特居住体验。
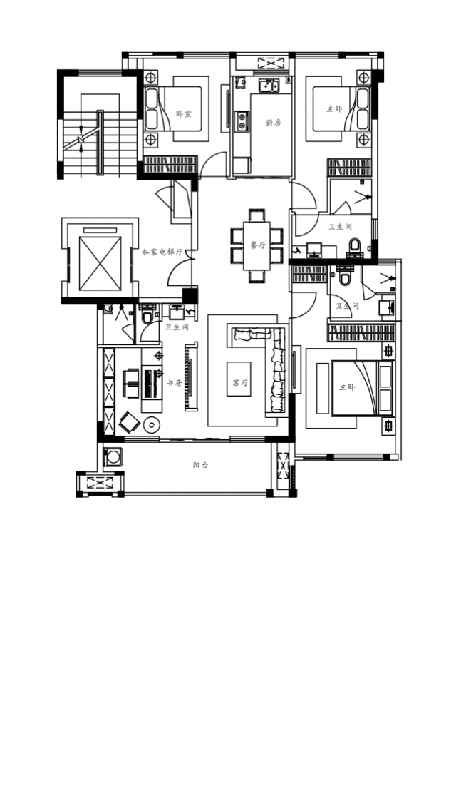
南向面宽,餐客联厅,以优越朝向,兼顾采光与通风,更以阔绰尺度,兼顾家庭与社交的多种需求。让用餐时施展阔绰舒适,让会客时尽得尊荣。
▲ 鼓山院子大平层户型示意
6.5米全景观览阳台,榕城半壁风光与鼓山万亩山林景色尽收眼底,与客厅一步之隔,从生活到生活美学,只需转身的距离。
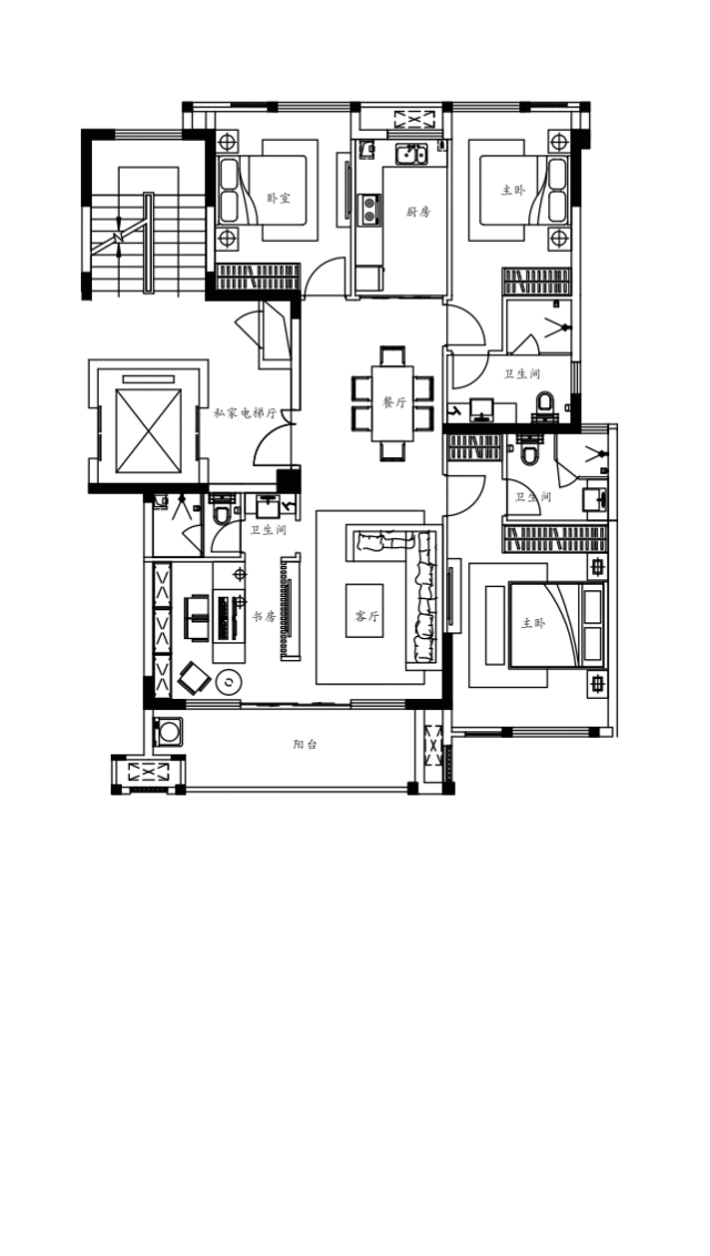
▲鼓山院子大平层户型示意
三房布局,双套间设计,提供非凡独立生活质感,无论是三代同堂,还是全家聚集,都能在这里找到最舒服的相处方式,可谓在平层里实现院墅的居住尺度,更设计独立卧室结构,为孩子带来独立成长空间,提供更多自由可能与舒适居住环境。
▲鼓山院子大平层户型示意
户型方正有序,整体布局合理,室内动线高效科学,以国际流行的L型布局打造厨房,实现空间利用和日常效率的最大化。
▲鼓山院子大平层户型示意
房间外更享受私人玄关,一梯一户,配合独立入户空间,进出之间,尽享私密与便利。
▲鼓山院子大平层户型示意
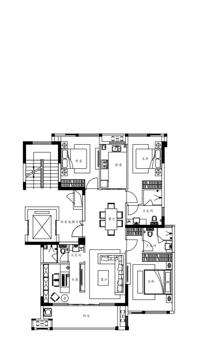
真正的理想生活,不止是人与自然的和谐,更是人与人、人与空间尺度之间的从容,鼓山院子——院子里的大平层,坊巷般的墅级体验,在细节上精雕细琢,一梯一户,纯板式结构,打造榕城理想人居,为生活谱写优雅诗意。
